Oferta sprzedaży mieszkania
Osiedle Zawiszy Czarnego – Żary
Zapraszam do zapoznania się z ofertą
Osiedle Zawiszy Czarnego
Na sprzedaż przestronne 3 pokojowe bezczynszowe mieszkanie 62,3 m² w świetnej lokalizacji – Osiedle Zawiszy Czarnego w Żarach.
Oferujemy na sprzedaż jasne i przestronne 3 pokojowe mieszkanie o powierzchni 62,3 m², idealne dla rodziny lub jako inwestycja.
Rodzaj nieruchomości: blok mieszkalny Osiedle Zawiszy Czarnego
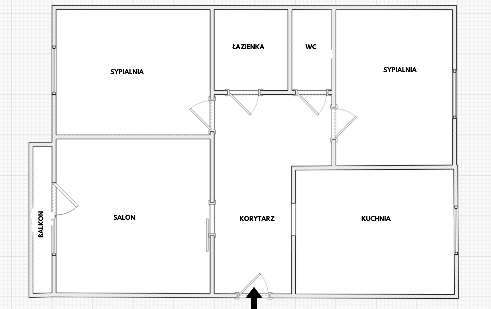
Powierzchnia: 62,3 m² – 4 piętro
Opłaty stałe (przy dwóch osobach) : 603,30 PLN + 126 PLN fundusz remontowy
Mieszkanie składa się z:
Salon – duży, słoneczny pokój dzienny idealny do wypoczynku.
Dwie sypialnie – komfortowe pomieszczenia z możliwością aranżacji według własnych potrzeb.
Kuchnia – funkcjonalna, gotowa do użytkowania.
Łazienka z osobnym WC – wygodne rozwiązanie dla codziennego użytku.
Duży korytarz – z miejscem na szafę i dodatkowe schowki.
Dodatkowe atuty mieszkania:
Duży balkon – idealny na poranną kawę i wieczorny relaks.
Przynależna piwnica – dodatkowa przestrzeń do przechowywania.
Piękna, zielona okolica – mieszkanie usytuowane w malowniczej, zielonej okolicy, otoczonej lasami, które zapewniają możliwość aktywnego wypoczynku na świeżym powietrzu (siłownia + place zabaw dla dzieci) spacery i wycieczki rowerowe.
Telewizja kablowa + Internet światłowodowy
Mieszkanie zachowane w bardzo dobrym stanie
Mieszkanie znajduje się w spokojnej i dobrze skomunikowanej okolicy, blisko sklepów i przystanku komunikacji miejskiej.
Oferta skierowana do osób ceniących komfort i wygodę.
Cena 360000 PLN.
Zapraszamy do kontaktu i umówienia się na oględziny.
Historia osiedla
Koszary – nowo powstająca i zarazem najmniejsza dzielnica miasta Żary zlokalizowana we wschodniej części miasta przy drodze krajowej nr 12 Żary – Żagań.
Obszar nowej dzielnicy to byłe tereny wojskowe (stąd nazwa dzielnicy), w skład których zalicza się byłą jednostkę wojskową (zlikwidowaną w 2001 roku, ok. 56 ha) oraz tereny poligonowe (ok. 110 ha).
Po likwidacji żarskiego garnizonu wojskowego Rada Miejska w Żarach we wrześniu 2005 roku uchwaliła plan zagospodarowania przestrzennego tego obszaru (w sumie 180 ha), który przewiduje:
budownictwo mieszkaniowe jednorodzinne (14-hektarowe osiedle),
budownictwo mieszkaniowe wielorodzinne (również mieszkania socjalne),
tereny usług sportowych, turystycznych i rekreacyjnych,
przemysł nieuciążliwy,
handel i usługi.
Na terenie dzielnicy znajduje się Osiedle Zawiszy Czarnego. Starsza część osiedla pochodzi z lat 1911–1913, natomiast nowsza budowana była jeszcze w latach 70. XX w. Jest to jedno z większych osiedli mieszkaniowych Żar.
Galeria
Salon
Kuchnia
Sypialnia
Sypialnia 2
Łazienka + Toaleta
Korytarz
Kontakt
+48 692 659 902
izapas@wp.pl






























